26 kwietnia 2026 r. Godzina 15:32.

Archiwum aktualności

POAK - Przegląd Pieśni Patriotycznej
Info
Huczne Świętowanie

11 listopada przeżywaliśmy kolejny odpust parafialny związany z obchodami św. Marcina. Sumę odpustową odprawił i kazanie wygłosił były wikariusz naszej parafii ks. Łukasz Zych. Przypomniał nam czym jest i kiedy powinniśmy stosować jałmużnę dotyczącą ludzi ubogich na wzór św. Marcina, który podzielił się połową swojego płaszcza z potrzebującym. Dziękujemy wszystkim którzy uświetnili tę uroczystość pocztom sztandarowym, orkiestrze, chórowi parafialnemu, służbie liturgicznej ołtarza, KGW. Życzymy wszystkim uczestnikom Błogosławieństwa Bożego wypraszanego z rąk św. Marcina. I czekamy na Was za rok.

I Parafialny Korowód Świętych

5 listopada, w słoneczne niedzielne przed południe do naszego parafialnego kościoła zawitali niezwykli goście. Z okazji Uroczystości Wszystkich Świętych przybyli do nas różni święci, z różnych czasów. Pokazało nam to, że niebo jest miejscem, które łączy wiele pokoleń. W radosnej atmosferze, ze śpiewem na ustach prowadzonym przez parafialną diakonie muzyczną po uroczystej mszy św. przeszliśmy z kościoła do Domu kultury gdzie dla naszych „świętych” był przygotowany poczęstunek. Wszystkim, którzy pomogli zorganizować pierwszy korowód świętych składamy serdeczne Bóg zapłać. Szczególnie ks. Proboszczowi za okazaną życzliwość i otwarte serce. Jak również pomysłodawcom – radzie parafialnej. Również za serdeczne przyjęcie przez pana sołtysa Stanisława Peszla, pani Cecyli Puzoń. I tym wszystkim którzy w jakikolwiek przyczynili się do upiększenia tej uroczystości – manifestacji wiary w świętych obcowanie.

Jedną z większych atrakcji w korowodzie świętych był główny patron naszej parafii św. Marcin, który pojawił się na białym koniu. I ufamy, że spotkamy się za rok z jeszcze większą listą świętych.

Lista Świętych tutaj.

Modlitwa do granic możliwości

W święto Matki Bożej Różańcowej (7 października), na zakończenie obchodów 100. rocznicy objawień fatimskich, Polacy udali się na granice kraju, by modlić się o ratunek dla swojej Ojczyzny i całego świata. Maryja jest Królową Polski, przez całe pokolenia opiekuje się nami, w krytycznych momentach historii zawsze była przy nas, a my przy Niej. Jako ratunek dla świata, Matka Boża wskazuje na modlitwę różańcową.

Również z naszej wspólnota parafialnej grupa 50 pielgrzymów przybyła do granicznego kościoła stacyjnego w Rycerce Górnej modliliśmy się wspólnie najpierw na Eucharystii i adoracji, a później udając się na szczyt na modlitwie różańcowej w intencjach pokoju, nawrócenia, rodzin naszej Ojczyzny i świata.

Relacja fotograficzna z tego wydarzenia znajduje się tutaj.

Z JANEM PAWŁEM II PO BESKIDZIE WYSPOWYM

W sobotę 30 września 2017 r. wyruszyliśmy na najdalszą, jak dotychczas wędrówkę po papieskich szlakach. Tym razem, grupą 41 osób szukaliśmy górskich śladów Jana Pawła II po Beskidzie Wyspowym. Ta grupa górska charakteryzuje się innym wyglądem niż pozostała część Beskidów. Cechą Beskidu Wyspowego są odosobnione szczyty pomiędzy dolinami. Najwyższym szczytem jest Mogielica 1170 mnpm, a największym miastem Limanowa.

Z Pisarzowic wyruszyliśmy autokarem w 120 km trasę przez Wadowice , Suchą Beskidzką, Maków Podhalański i Mszanę Dolną. Po ponad 2 godz. dotarliśmy do Jurkowa. Papieski szlak na Ćwilin rozpoczęliśmy z centrum tej miejscowości. Według relacji mieszkańców tym szlakiem wędrował kardynał Karol Wojtyła w 1971 r., jednak dokładna data nie jest znana. Na szczyt Ćwilina 1072 mnpm dotarliśmy po 2 godz. podejścia. Ze szczytowej polany ukazał się nam widok na szczyty Beskidu Wyspowego oraz całe Gorce. Nad Gorcami powinny ukazać się nam Tatry, niestety zasłaniały je kłębiaste chmury. Odpoczynek zrobiliśmy sobie na podszczytowej Polanie Michurowej, gdzie postawiony jest obelisk poświęcony Janowi Pawłowi II. Przed wyruszeniem w dalszą drogę odmówiliśmy Anioł Pański.

Nasza dalsza trasa wiodła szlakiem, którym 22 czerwca 1953 r. przemierzał św. Jan Paweł II wraz ze studentami. Był to ich drugi dzień wędrówki, którą zaczęli w Kasinie Wielkiej wychodząc na Śnieżnicę i Ćwilin, po czym zeszli tą samą trasą. Ks. Wojtyła wrócił do Krakowa, natomiast młodzież kontynuowała wyprawę jeszcze kilka dni.

Czekało nas teraz strome zejście na Przeł. Gruszowiec, które okazało się bardzo niebezpieczne, z powodu padającego deszczu w poprzednich dniach. Jednak szczęśliwie dotarliśmy na Przeł. Gruszowiec. Biegnie tędy szosa, którą przejeżdżał papież Jan Paweł II 16 czerwca 1999 r., jadąc z Krakowa do Starego Sącza na kanonizację bł. Kingi. Stąd jeszcze 20 min. mozolnego podejścia do Młodzieżowego Ośrodka Rekolekcyjnego na stokach Śnieżnicy.

Ośrodek powstał w 1930 r. Po II wojnie światowej przejęty przez władze PRL i doprowadzony do ruiny. W 1966 r. w czasie wizytacji parafii Mszana Dolna, biskup Wojtyła odwiedził to miejsce drugi raz , zaniepokojony niszczejącą drewnianą kaplicą w tym ośrodku. W latach 90-tych, część terenu (3,5 ha ze 100 ha) odzyskała Archidiecezja Krakowska, odbudowując budynki. Do powstałej nowej kaplicy papież Jan Paweł II podarował obraz Matki Bożej Śnieżnej.

W Ośrodku Rekolekcyjnym, przywitał nas gospodarz tego miejsca, ks. Jan Zając znający naszą parafię i ks. proboszcza Janusza Gacka, ponieważ w latach 1989 -1994 pełnił funkcję proboszcza w Jawiszowicach. Przy kaplicy, ks. Jan opowiedział nam historię, oraz czasy teraźniejsze ośrodka. W kaplicy ks. proboszcz, odprawił Mszę Św. w czasie której zebrana była składka pieniężna na mający tu stanąć pomnik Jana Pawła II Turysty. Po Mszy Św. udaliśmy się na smaczną kiełbaskę przygotowaną przez panie kucharki. Następnie odbył się konkurs wiedzy o Janie Pawle II dla dzieci, w którym nagrody ufundował ks. proboszcz. Po 2,5 godz. odpoczynku wyruszyliśmy stromym stokiem do stacji kolejowej w Kasinie Wielkiej. Stacja została wybudowana w 1884 r. stanowiąc część Galicyjskiej Kolei Transwersalnej, dziś już nieczynna. W okresie wakacyjnym, kursują tutaj z Chabówki pociągi retro. Miejsce to stanowiło plener do filmów min. Stevena Spielberga „Lista Schindlera” i Andrzeja Wajdy „Katyń”. Obok stacji znajduje się cmentarz żołnierzy armii austriackiej z I wojny światowej.

Z tego miejsca odjechaliśmy do Pisarzowic, z tej stacji odjechał pociągiem do Krakowa po swojej wędrówce, również ks. Karol Wojtyła 22 czerwca 1953 r.

Bogdan Pudełko

Wdzięczni za Boże dary
Wrzesień to czas kiedy prawie w każdej wiosce obchodzi się dożynki. W naszej parafii ten dzień, w którym składamy Bogu i ludziom dziękczynienie mogliśmy przeżywać 17 września. Dziękujemy wszystkim za złożone dary. Za liczną obecność podczas mszy św., której wagę podkreśliła obecność orkiestry. Warto podkreślić trud włożony w uplecenie wieńca dożynkowego w ty mroku na kształt łodzi Piotrowej. Wszystkim, którzy przyczynili się do upiększenia tej wielkiej uroczystości składamy z serca Bóg zapłać, zapewniając o pamięci modlitewnej.
Młodzi w amfiteatrze pod Grojcem w Żywcu 2017
Młodzi z całej diecezji bielsko-żywieckiej po raz czwarty spotkali się w żywieckim amfiteatrze pod Grojcem, na inauguracji nowego roku formacyjnego wspólnot dzieci i młodzieży. W sobotę 9 września 2017 r. przybyło ok. 2 tys. osób. Razem ze swoimi duszpasterzami uczestniczyły w Mszy św. pod przewodnictwem biskupa Romana Pindla, a po Eucharystii w koncercie zespołu Mate.O/TU. Na tym wydarzeniu byli obecni przedstawiciele naszej parafii. Ufamy, że w przyszłym roku jeszcze więcej osób zaangażuje się w wyjazd poznając przy tym różne wspólnoty naszej diecezji.

Zdj. Urszula Rogólska

Gietrzwałd
Czy wiecie, że …

- 140 lat temu w małej wsi na Warmii Matka Boża objawiła się dwom dziewczynkom aż 160 razy ?
- są to jedyne objawienia Maryjne w Polsce oficjalnie zatwierdzone przez Kościół Katolicki ?
- z pobłogosławionego przez samą Matkę Bożą źródełka pielgrzymi po dziś dzień czerpią wodę przyczyniającą się do licznych uzdrowień i ulgi w cierpieniach ?

Odpowiedzi na te pytania szukał nasz Chór Parafialny, nawiedzając Sanktuarium w Gietrzwałdzie 02.09.2017 roku, gdzie po raz pierwszy 27.06.1877 roku na klonie w pobliżu kościoła Maryja objawiła się 13-letniej Justynie Szafryńskiej i 12-letniej Barbarze Samulowskiej. Objawienia trwały do 16.09.1877 , Maryja mówiła do dziewczynek po polsku !!!

Na zapytanie wizjonerek „ kto Ty jesteś?”, odpowiedziała : „ JESTEM NAJŚWIĘTSZA PANNA MARYJA NIEPOKALANIE POCZĘTA”

Na pytanie „ czego żądasz, Matko Boża?’, padła odpowiedź : „ ŻYCZĘ SOBIE, ABYŚCIE CODZIENNIE ODMAWIALI RÓŻANIEC”

W 1977 roku, czyli 100 lat po objawieniach, Kościół Katolicki oficjalnie zatwierdził ich autentyczność.

Po drodze do Gietrzwałdu nawiedziliśmy Bazylikę NMP w Gidlach, gdzie nasz opiekun duchowy, ks. Proboszcz Janusz Gacek odprawił Mszę Świętą przed cudowną figurką Matki Bożej w intencji jubilatów z naszego Chóru . Po zapoznaniu się z historią Sanktuarium i zaopatrzeniu się w cudowne winko, ruszyliśmy w dalszą drogę – na pola Grunwaldu.

Zwiedziliśmy także stolicę Warmii – przepiękny Olsztyn, a w drodze powrotnej Niepokalanów – franciszkański Gród Maryi, gdzie po Mszy Świętej odprawionej przez naszego ks. Proboszcza za parafian Pisarzowic, uczciliśmy relikwie św. Maksymiliana Kolbe.

W miłej i rozśpiewanej atmosferze, po trzech dniach pielgrzymowania, wróciliśmy do domów, za co BOGU NIECH BĘDĄ DZIĘKI

Anna i Jarosław Tora

Pożegnanie Księdza Adama.
W niedzielę, 20 sierpnia pożegnaliśmy Księdza Adama Łomozika, który pracował w naszej parafii przez 5 lat. Wdzięczni za prace i wspaniałą postawę szlachetnego kapłana, życzymy Księdzu Adamowi zdrowia i błogosławieństwa Bożego w dalszej posłudze duszpasterskiej.
Ks. Proboszcz

Ksiądz co pisał wiersze …
księdzu Adamowi – Diakonia muzyczna z parafii Pisarzowice

To już pięć latek minęło
(tak w pamięci to układam)
odkąd do naszej parafii
przybył ksiądz wikariusz Adam.

Do jakiejkolwiek czynności
przez proboszcza posyłany
na sto dziesięć procent zawsze
był do niej przygotowany.

W szkole ucząc katechezy,
udzielając sakramentów,
dyżurując w kancelarii,
rozgrzeszając penitentów.

Czy to lato, czy też zima,
upał, mróz czy lekki mrozik
w konfesjonale po prawej
wciąż spowiadał ksiądz Łomozik.

Nad parafialnymi grupy
opiekę sprawował pilną
z chórem zwiedził kawał Polski,
trochę Węgier, całe Wilno.

Dziś, kiedy przy pożegnaniu
niejeden z nas łzę uroni
niech ksiądz przyjmie pamiątkowy
wierszyk Muzycznej Diakonii.

I choć miejsce zamieszkania
zmienia ksiądz z woli biskupa
do Pisarzowic zaprasza
nasza rozśpiewana grupa.

Wtedy znowu wspólnym śpiewem
Pana Boga pochwalimy
a jak „szliśmy przez Pacyfik”
w szantach sobie przypomnimy.

Za posługę Twą składamy
podziękowania najszczersze
w pamięci nam pozostaniesz
jako: Ksiądz co pisał wiersze.

Niech Pan Jezus błogosławi
zawsze Twojemu działaniu
byś był zawsze, tak jak dotąd
wierny swemu powołaniu.

Szczęść Boże !!!

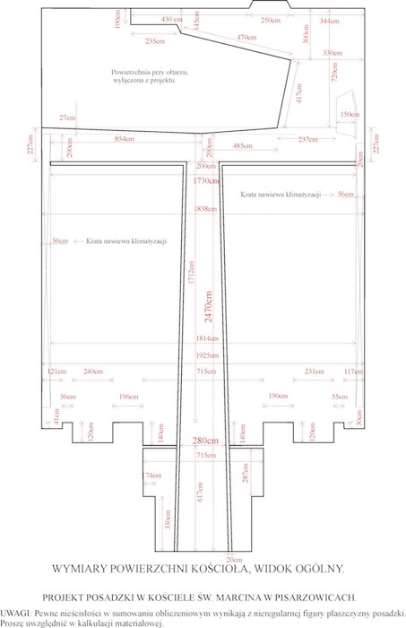
Projekt posadzki
Odpust Matki Bożej Szkaplerznej

W niedzielę, 16 lipca b.r. odbyła się w naszej parafii uroczystość odpustowa Matki Bożej Szkaplerznej. Kazania odpustowe wygłosił franciszkanin pochodzący z Hecznarowic, profesor teologii mieszkający w Rzymie o. Zbigniew Wójcik. Sumę odpustowa odprawił nasz Ksiądz Jubilat, ks. Piotr Homel. Dziękuję wszystkim za obecność na tej parafialnej uroczystości oraz przygotowanie liturgii odpustowej i dekorację świątyni .
Ks. Proboszcz

Z kazania O. Zbigniewa Wójcika
„Cieszy mnie fakt, że parafia pod wezwaniem św. Marcina w Pisarzowicach obrała sobie za szczególną patronkę Najświętszą Maryję Pannę Szkaplerzna i corocznie uprasza jej wstawiennictwa podczas uroczystości odpustowych. Ja sam miałem okazję uczestniczyć w tych uroczystościach jeszcze jako dziecko, kiedy moja rodzina mieszkała na terenie waszej parafii. Pamiętam z tamtego okresu szczególną i podniosłą atmosferę modlitwy podczas tych uroczystości oraz przepiękny wystrój świątyni, która łączy w sobie ducha liturgicznej tradycji ze świeżością i majestatem nowoczesności... Pragniemy dzisiaj prosić Najświętszą Maryję Pannę z Góry Karmel, aby wypraszała dla całej parafii w Pisarzowicach wszelkie potrzebne łaski i Bożą opiekę u swojego Syna na kolejne lata. Niech Jej wstawiennictwo ogarnia wszystkie rodziny tej parafii, osoby samotne, chorych i potrzebujących, aby poprzez jej łaskawe i szlachetne ręce strumienie Bożego Miłosierdzia i wszelkiego dobra spływały obficie każdego dnia na was wszystkich. Amen”. ( O. Zbigniew Wójcik OFM )

Parafialna pielgrzymka do Wilna 11-13.07 2017
Akt oddania i zawierzeni Maryi, Matce Miłosierdzia

Witaj Królowo, Matko Miłosierdzia, życie słodyczy i nadziejo nasza, witaj


Maryjo, przybyliśmy do Twego tronu tu w Ostrej Bramie z daleka, z południa Polski
Przybyliśmy, by tu w Wilnie oddać Ci nasz hołd i dokonać zawierzenia.

Do Ciebie wołamy wygnańcy, synowie Ewy

Błagamy o Twe Miłosierdzie, my grzeszni ludzie, zwróć swe miłosierne wejrzenie do Jezusa Twego Syna, tak jak to uczyniłaś w Kanie Galilejskiej – Synu wina nie mają - okaż im grzesznym, Twoje miłosierdzie, potrzebują Twego zmiłowania i łaski.

A Jezusa błogosławiony owoc żywota twojego po tym wygnaniu nam okaz

Jezus jest drogą, prawdą i życiem. Niech za Twoją przyczyną stanie się naszą drogą, prawdą i życiem. Ty ciągle nam przypominasz „ zróbcie cokolwiek Syn mój wam wskaże”.

O łaskawa, o litościwa, o słodka Panno Maryjo !

Polacy są narodem zawierzenia, za świętym Janem Pawłem woła każdy z nas Totus Tuus. Zawierzmy tu w Ostrej Bramie, przed Twoim Maryjo obliczem, nasze życie, nasze sprawy, nasze rodziny a także całą naszą pisarzowicką parafię. Amen
W rękach Ojca

Na rozpoczęcie wakacji w dniach 25 czerwiec - 05 lipiec dzieci i młodzież w liczbie 44 z parafii św. Marcina w Pisarzowicach udało się na letni wypoczynek tzw. „wakacji z Bogiem”. Tym razem udali się do Jastrzębiej Góry, aby tam przy szumie morza, piękna stworzonego świata, i drugim człowieku, odkrywać tajemnice i lepiej zrozumieć sens modlitwy „Ojcze Nasz” - jedynej, której nas nauczył sam Pan Jezus. Jednak modlitwa to jedno, trzeba też nauczyć się wcielać ją w spotkaniu z drugim człowiekiem temu nam pomagały wspólne zabawy, spacery i wycieczki. Mogliśmy doświadczyć wielu cudownych chwil. Dziękujemy wszystkim którzy wsparli nasz wyjazd: parafii św. Marcina, księdzu proboszczowi Januszowi Gackowi. Caritas Diecezji Bielsko – Żywieckiej, jak również Burmistrzowi Gminy Wilamowice.

Rodzina Rodzinie

Nasza parafia podjęła akcję Caritas Polska Rodzina Rodzinie. Od kwietnia 2017 roku, wspieramy syryjska rodzinę Krikor Akrabian (ID2481). Co miesiąc na konto Caritas wpłacamy przez 6 miesięcy 510 zł. Dzięki zbiórce przy kościele w dniu 23 kwietnia uzyskaliśmy 4393.89 zł. Pieniądze te stanowią fundusz na prowadzenie akcji. Wszystkim ofiarodawcom składamy "Bóg zapłać". Ks. Janusz Gacek proboszcz

więcej informacji znajdziesz na: rodzinarodzinie.caritas.pl

RodzinaRodzinie
Zróbcie Mu miejsce, Pan idzie z nieba…

Tym razem 15 czerwca wyruszyła procesja Bożego Ciała ulicami naszej parafii.

Dziękujemy wszystkim grupom parafialnym, pocztom sztandarowym, orkiestrze, dzieciom, za ubogacenie tego dnia swoją obecnością. Wszystkim tym którzy udekorowali okna swoich domów pokazując wiarę w żywą, realną i prawdziwą obecność Pana Jezusa ukrytego pod postacią chleba.

Być dobry jak chleb

W dniu odpustu Matki Kościoła, zawitali do nas niezwykli gości, siostry Albertynki wraz ze świętym swoim patronem Albertem, który odtąd stał się częścią naszej parafii. Pod przewodnictwem księdza Prałata Roberta Tyrały, została odprawiona suma odpustowa, na której też wygłosił kazanie. Dziękujemy chórowi za oprawę muzyczną, pocztom sztandarowym, Kole Gospodyń Wiejskich, strażakom, Służbie Liturgicznej Ołtarza, wszystkim zebranym parafianom. Szczególne podziękowania na ręce rodziców dzieci I komunijnych, którzy ufundowali obraz wraz z relikwiami św. Brata Alberta.

Idź i kochaj

Pod takim hasłem przeżywaliśmy kolejne spotkanie młodych na Lednicy2000. Młodzi przedstawiciele naszej parafii mogli brać udział w tej prawie 90 tys. manifestacji wiary. Dziękuję wszystkim uczestnikom za zaangażowanie, świadectwo wiary. I już ze zniecierpliwieniem czekamy przyszłego roku.

Po śladach św. Jana Pawła II na Górę Chełm

W dniu 27.05.2017 r. wyruszyliśmy na kolejną, XI Parafialną Wędrówkę Górską Śladami św. Jana Pawła II. Tym razem w Beskid Makowski. Wzięło w niej udział 59 osób w tym 16 dzieci. Wyruszyliśmy na szlak, którym św. Jan Paweł II wędrował w czerwcu 1959 r. jako biskup, po wizytacji parafii Zembrzyce. W góry wybrał się z trzema ministrantami, wśród których był obecny, dzisiejszy kapłan ks. infułat Władysław Fidelus, były proboszcz żywieckiej katedry. Autobusem dotarliśmy do Zembrzyc, przejeżdżając przez Wadowice w których św. Jan Paweł II spędził 18 lat swojego życia. Podziwialiśmy również widoki na napełniające się wodami rzeki Skawy, Jezioro Mucharskie. W Zembrzycach przed wyruszeniem na szlak, odwiedziliśmy cmentarz na którym pochowany jest proboszcz naszej parafii w latach 1975 – 1982 ks. Szczepan Żmudka, pochodzący z tej miejscowości. Na grobie złożyliśmy kwiaty i zapaliliśmy znicze. Ks. proboszcz przypomniał nam postać śp. ks. Szczepana Żmudki oraz wspomniał o zmarłych proboszczach naszej parafii. Po modlitwie, wyruszyliśmy na szlak, który po minięciu centrum, wspinał się dość ostro. Po dwóch krótkich odpoczynkach, dotarliśmy do kapliczki Matki Bożej w Marcówce, przy której odśpiewaliśmy majówkę. Przy tej kapliczce, jak wspomina ks. Fidelus, św. Jan Paweł II odmówił litanię do Najświętszego Serca Pana Jezusa. Po półgodzinnym marszu dotarliśmy na zalesiony szczyt Chełmu 603 m. Tutaj św. Jan Paweł II wyszedł na wieżę triangulacyjną, podziwiając widoki na klasztor w Kalwarii Zebrzydowskiej. Niestety, wieża ta już nie istnieje, więc my niemieliśmy takiej możliwości. Na tej górze znajduje się mogiła partyzantów AK którzy zginęli tutaj z rąk hitlerowców w 1944 r. Na grobie zapaliliśmy znicze i podeszliśmy kilkadziesiąt metrów do figury św. Onufrego. Św. Onufry żył w IV w. był synem władcy Persji. Wstąpił do klasztoru, ale potem wybrał pustelnicze życie na pustyni, gdzie spędził 60 lat. Jest patronem pielgrzymów, wędrowców, mnichów i tkaczy. Z Chełmu krótkie zejście do Ośrodka Wczasowo – Rekolekcyjnego Caritas w Zakrzowie im. Jana Pawła II. W tutejszej kaplicy ks. proboszcz odprawił Mszę Św. ze wspomnieniem św. Brata Alberta Chmielowskiego w intencji śp. ks. Szczepana Żmudki. Przy ołtarzu przeniesionym tutaj z krakowskich Błoni, Mszę Św. sprawowali trzej papieże Jan Paweł II, Benedykt VI i Franciszek. Po Mszy Św. zeszliśmy do dolnej części Ośrodka Caritas na ognisko. Tutaj odbyły się konkursy dla dzieci. Po rozdaniu nagród i 2,5 godzinnym odpoczynku, zeszliśmy do kościoła św. Anny w Zakrzowie, gdzie przyjechał po nas autobus. Na następną wędrówkę zapraszam wraz z ks. proboszczem Januszem Gackiem, już po wakacjach we wrześniu.

Serdeczne Bóg zapłać składa nam Dyrektor Ośrodka Caritas w Zakrzowie ks. Grzegorz Wicher. Cały dochód z zakupionej przez nas kiełbasy na ognisko i kawy oraz ofiara złożona na tacę w czasie Mszy Św. zostanie przeznaczona na pomoc potrzebującym. Ja również składam serdeczne podziękowania ks. proboszczowi i wszystkim uczestnikom za udział i pomoc w czasie tej wędrówki.

Bogdan Pudełko

Święto Eucharystii

21 maja osiemdziesięcioro dwoje dzieci przyjęło do swego serca po raz pierwszy Pana Jezusa. Życzymy wszystkim dzieciom i ich rodzicom, wszelkiego błogosławieństwa, jak również wytrwania w łaskach, które otrzymali wraz z pierwszą spowiedzią świętą i Komunią św. By dzięki przyjmowanym sakramentom coraz bardziej stawali się dobrzy jak chleb w myśl słów i życia jakie po sobie zostawił św. Brat Albert. Dziękujemy za złożone dary obraz tegoż świętego jak również relikwie św. z Krakowa, które 5 czerwca zagoszczą w naszej parafii.

Srebrny Jubileusz

Okazją do wdzięczności Bogu, jest 25-lecie kapłaństwa. Za tyle lat ksiądz Piotr Homel dziękował Bogu w dniu kiedy przyjmował święcenia z rąk Ks. Biskupa Tadeusza Rakoczego. Warto wspomnieć, że jest to pierwszy rocznik wyświęcony dla naszej diecezji jak również pierwszy rocznik wyświęcona przez Ks. Bpa Tadeusza. Życzymy księdzu Piotrowi obfitości łask jak również obfitego błogosławieństwa Bożego.

Dzień otwarty… w krakowskim seminarium

W Krakowie 13 maja poza uroczystościami 100-lecia objawień fatimskich był czas, w którym każdy chętny mógł pozwiedzać budynek seminarium krakowskiego gdzie klerycy przez 6 lat przygotowują się do bycia księżmi. Również grupa z Pisarzowic była podziwiać ten budynek z XVII wieku, jak również choć w małej części poczuć życie seminaryjne.

Zachęcam do opisu seminaryjnego: seminarium-krakow.pl

Cała diecezja w Sercu Maryi!

W sobotę 13 maja 2017 r. - w 100. rocznicę objawień Matki Bożej w Fatimie - biskup Roman Pindel uroczyście zawierzył diecezję bielsko-żywiecką Niepokalanemu Sercu Najświętszej Maryi Panny. Uroczysty Akt Zawierzenia podpisali reprezentanci środowisk całej diecezji. W Uroczystościach brały udział delegacje z różnych parafii także i z naszej.

Więcej na stronie: bielsko.gosc.pl

Biją dzwony... Alleluja!

Liturgia Wielkiej Wigilii Paschalnej najbardziej bogata w znaki i symbole, aby oddać jak najlepiej to co Jezus dla nas zrobił. Wyprowadza nas z niewoli grzechu, jak kiedyś Izraelitów z Egiptu. Wypełnia słowa zapowiadane przez proroków nawet 700 lat wcześniej. Tajemnica Wielkiej, nieskończonej miłości Boga do człowieka, której Bóg oddaje się dobrowolnie na śmierć, aby człowiek miał życie. Byśmy potrafili odpowiedzieć Bogu na Jego miłość.

Pragniemy wszystkich podziękować za udział w tym świętym czasie Triduum Paschalnego. Przygotowującym Boży Grób za poświęcony czas i trud. Pocztom sztandarowym. Na ręce wszystkich zaangażowanym składamy bukiet naszych modlitw.

U Bożego Grobu

Wielka Sobota to szczególny czas, w którym całe rodziny przygotowują koszyczki na święcone. W Kościołach wpierw podejmujemy wspólną adorację przede wszystkim z dziećmi. Prosimy w tym dniu szczególnie o dar wiary w obecność Zmartwychwstałego Pana podczas uroczystego posiłku w domu. Za liczną waszą obecność bardzo Wam dziękujemy.

Kładli przed Nim swoje palmy

Palma nieodłączny element jednej z bardziej niezwykłych niedziel w liturgii Kościoła. Symbol oddania siebie, swojego życia Jezusowi. W tym roku 9 kwietnia mogliśmy widzieć ponad dwieście różnych, barwnych palm. Od małych tradycyjnych, ręcznie robionych, po duże sięgające prawie 5 metrów. Dziękujemy ślicznie wszystkim za włączenie się w tą tradycje przychodzenia do Kościoła z palmami. Przyjdzie za rok. Czekamy na waszą twórczość. W tym roku też po raz pierwszy odbył się konkurs palm, na największą oraz tradycyjną. Gratulujemy zwycięzcom. I liczymy, że konkurs ten będzie już nieodłącznie związany z Niedzielą Palmową.

Śladami Jezusa

W piątek 7 kwietnia, w tradycji naszej parafii jest wpisane wydarzenie Drogi Krzyżowej ulicami Pisarzowic. Mimo niesprzyjających warunków spory tłum wiernych podążał za Jezusem by razem z Nim przeżyć trudne wydarzenie męki i śmierci. Dziękujemy wszystkim zaangażowanym byśmy jak najlepiej mogli przeżyć ten święty czas. Szczególnie strażakom za czuwanie nad naszym bezpieczeństwem oraz niesienie krzyża, nagłaśniającym, jak również wszystkim młodszym i starszym za aktywne włączenie się w rozważania chwil z życia Pana Jezusa. Szczególne podziękowania dla p. Grażyny Jurasz za przygotowanie rozważań, w których mogliśmy się modlić za wszystkie stany naszej parafii. Wszystkim składamy serdeczne "Bóg zapłać", pamiętając o Was w modlitwie. Już teraz zapraszamy na następną drogę krzyżową ulicami Pisarzowic w przyszłym roku.

Nawróćcie Wasze serca

W dniach 25-29 marzec Ojciec Włodzimierz Tochmański OCD (Ordo Carmelitarum Discalceatorum), obecnie pracujący w Klasztosze Karmelitów Bosych w Czernej poprowadził Rekolekcje Parafialne. Pogłębił naszą wiarę w orędownictwo Matki Bożej w naszym życiu, jak również w łaski płynące z noszenia Szkaplerza MB z Góry Karmel. Wieloma przykładami i obrazami z życia przybliżał nam tajemnice modlitwy, relacji między ludzkich. Na ręce O. Włodzimierza składamy bukiet modlitw płynących za Jego osobę a także serdeczne "Bóg zapłać".

Wiele osób podczas tych rekolekcji wyraziło chęć wstąpienia do bractwa szkaplerza co nadal można uczynić.

Nowości w Służbie Liturgicznej

W niedzielę 26 lutego w naszej parafii miało miejsce uroczyste zaprezentowanie nowych lekcjonarzy, które zostały zakupione z ofiar złożonych podczas kolędy na rzecz ministrantów i lektorów, podzielili się tzw. "dziesięciną" jako dar wdzięczności za parafian, którzy ich podjęli w swoich domach. W tym samym czasie zostali przedstawieni dwaj nowi lektorzy Mateusz Biel i Mateusz Kostka, którzy pomogli ubrać się po raz pierwszy w strój liturgiczny (komże i kapturek) dwóm nowym ministrantom Adrianowi Gumińskiemu oraz Wiktorowi Bartosikowi. Rodzicom, Animatorom Służby Liturgicznej składamy wielkie Bóg Zapłać za podjętą współprace na rzecz nowych ministrantów.

Gdzie śpiew tam...

15 stycznia w Mazańcowicach odbył się przegląd chórów jak i scholi. Prezentowały one kolędy, pastorałki opracowane w swoisty sposób. Również i nasza diakonia muzyczna wraz z dziećmi zaprezentowały się na tym przeglądzie, gratulujemy im odwagi. Jesteśmy dumni z tego, że są młodzi ludzie, którym chce się zrobić coś więcej aniżeli siedzieć na "kanapie".

Wspólne kolędowanie
Fundacja

Przy pomocy gminy, fundacji krzyż dziecka oraz parafii, zostało zorganizowane kolędowanie Bożej Dziecinie. W wspólny śpiew jak i wysłuchanie aranżacji kolędowych i pastorałek pozwolili nam wejść Magurzanie zespół regionalny z Łodygowic, którzy nam także powinszowali, jak również zespół założony na potrzeby tego kolędowania Te Deum, który zadebiutował w naszym parafialnym kościele. Podczas całego dnia mogliśmy wesprzeć fundacje Krzyż Dziecka.

Wszystkim za przybycie jak i zorganizowanie kolędowania, składamy z serca Bóg zapłać.

Dzieci u Dzieciny

Dziękujemy wszystkim rodzicom, którzy wraz ze swymi pociechami potrafią się zatrzymać choć na krótką chwile w tym zabieganym świecie, przed stajenką, aby zastanowić się nad Tajemnicą Wcielenia. Wszystkim zaangażowanym prowadzącym śpiew jak i grającym na instrumentach składamy serdeczne "Bóg zapłać".

Razem z mędrcami

W Objawienie Pańskie (6 stycznia) dołączyliśmy do orszaku Trzech Króli. Razem z chórem, któremu jesteśmy wdzięczni za upiększenie celebracji Eucharystii. Wszyscy podążyliśmy za Gwiazdą na Wschodzie aby dojść i poznać samego Boga, który odważył stać się człowiekiem. Wszystkim uczestnikom czwartkowej Uroczystości serdecznie dziękujemy za przybycie.

Ta strona używa plików cookies.    Więcej    AKCEPTUJĘ